ЖК «Авиатор» — микрорайон со своей обособленной локацией. Здесь нет городской суеты и суматохи, есть много воздуха и открытого пространства. Здесь солнце яркое и ласковое, бескрайнее синее небо и ощущение полной гармонии и свободы.
ЖК Авиатор, Новый город
1 с 21.01.2026, обновлен 21.01.2026
Заинтересовал данный объект?
Нажимая на кнопку, вы даете свое согласие с Пользовательским соглашением и Политикой обработки персональных данных
Ваша заявка отправлена
Наш менеджер свяжется с вами в ближайшее время





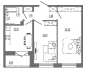
| 1-комн. | 34.00 - 38.00 м2 | от 6837700RUB6 837 700Р |
Адрес и расположение дома
| Регион | Иркутская область |
| Район | Октябрьский округ |
| Улица | Городской округ Иркутск, Иркутск, ул. Пискунова |
Основные характеристики
- Класс: Комфорт
- Этажей: 10
- Тип дома:
- Всего квартир: 88
- Застройщик:
- Срок сдачи: 2 квартал, 2026
- Отделка: Без отделки,Предчистовая
- Жилая площадь: от 32,8 до 79,1 м²
- В продаже: 1к.кв., 2к.кв., 3к.кв.
Паркинги
- Паркинг: Наземный
Жилой комплекс Авиатор от застройщика Новый город: ход строительства, фото и планировки.
Вконтакте
Планировки квартир в ЖК Авиатор
С проектной декларацией по объектам Новый город можно ознакомиться на сайте
Похожие новостройки рядом
Все жилые комплексы Иркутска
Ипотечный калькулятор
Подберем квартиру в новостройке!
Низкие ставки по ипотеке с ежемесячным платежом ниже аренды похожей квартиры.




























.png)